2014
Artur Dabrowski and Jamie Edindjiklian
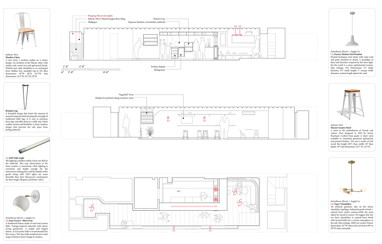
The winning proposal for a gut renovation, fit-out, and rebranding of a cafe in Harlem.